Residential
028 9032 4555
Commercial & Investments
028 9032 4555
Estate Agents in Belfast, Ireland
X Icon
  • Photo 1 of 36 Weston Drive, Stockmans Lane, Belfast
  • Photo 2 of 36 Weston Drive, Stockmans Lane, Belfast
  • Photo 3 of 36 Weston Drive, Stockmans Lane, Belfast
  • Photo 4 of 36 Weston Drive, Stockmans Lane, Belfast
  • Photo 5 of 36 Weston Drive, Stockmans Lane, Belfast
  • Photo 6 of 36 Weston Drive, Stockmans Lane, Belfast
  • Photo 7 of 36 Weston Drive, Stockmans Lane, Belfast
  • Photo 8 of 36 Weston Drive, Stockmans Lane, Belfast
  • Photo 9 of 36 Weston Drive, Stockmans Lane, Belfast
  • Photo 10 of 36 Weston Drive, Stockmans Lane, Belfast
« Back
For sale | Commercial Land |
Asking price £249,950

36 Weston Drive , Stockmans Lane Belfast , BT9 7JF

Asking price £249,950

Key Information

Address 36 Weston Drive, Stockmans Lane, Belfast
Status For sale
Price Asking price £249,950
Land type Commercial Land
Heating Oil

Features

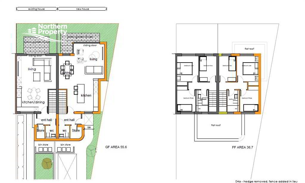
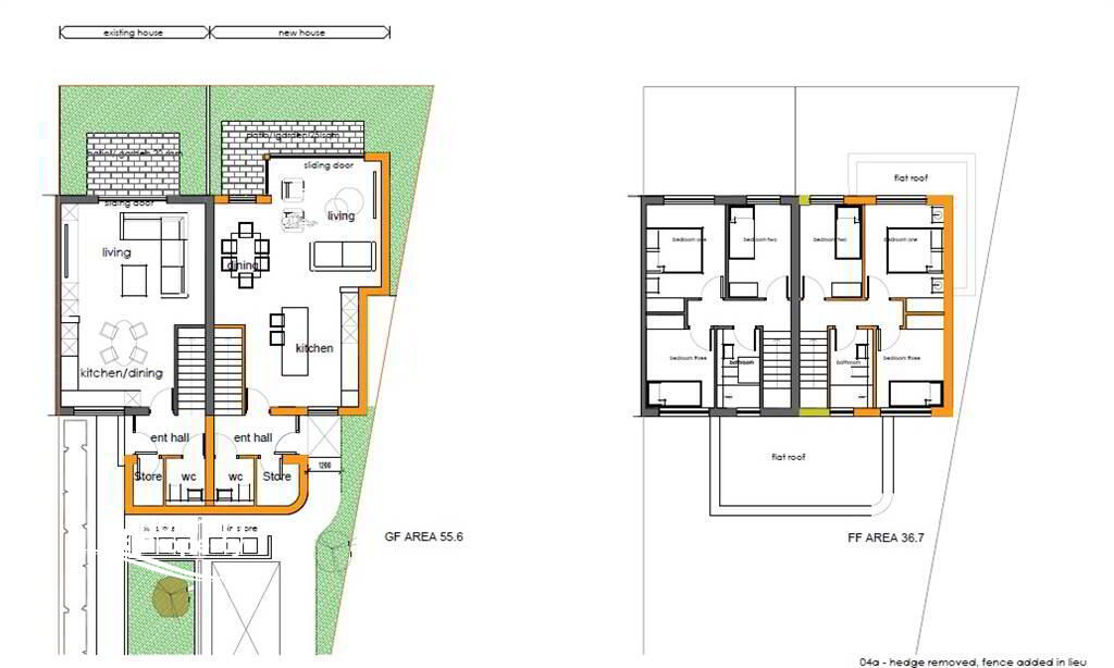
  • End Terrace & Site with Full Planning Permission
  • Planning ref: LA04/2023/4380/F
  • Demolition of existing garage and construction of new two storey dwelling adjacent to existing dwelling. Alterations to existing dwelling including single storey front extension

Additional Information

Location
Weston Drive is a quiet cul-de-sac located just off Stockmans Lane, conveniently positioned close to Musgrave Park Hospital, Boucher Road, and the M1 motorway. The property is ideally situated, being approximately an 11-minute drive from Belfast City Centre and a 12-minute drive from Belfast City Airport.
Description
36 Weston Drive is an end-terrace, three-bedroom property. The property has been fully cleared and is ready for refurbishment in accordance with the approved planning permission, which allows for the construction of an additional dwelling and improvements to the existing dwelling to mirror the new property.
Planning Information
Planning permission has been granted by Belfast City Council for,
Demolition of existing garage and construction of new two storey dwelling adjacent to existing dwelling. Alterations to existing dwelling
including single storey front extension and change of materials to white render.
Under reference LA04/2023/4380/F.
Further Information:
To enquire please contact our sales team on 02890 324 555 or email commercial@northernproperty.com

Entrance Level

LIVING / KITCHEN:
W.C.

First Floor

BATHROOM:
BEDROOM (1):
BEDROOM (2):
BEDROOM (3):

Directions

Weston Drive is a small cul-de-sac off Stockmans Lane close to Musgrave Park Hospital.

Need some more information?

Fill in your details below and a member of our team will get back to you.

Please check you have entered all details correctly:

Similar Properties