Residential
028 9032 4555
Commercial & Investments
028 9032 4555
Estate Agents in Belfast, Ireland
X Icon
  • Photo 1 of 535c Falls Road, Belfast
  • Photo 2 of 535c Falls Road, Belfast
  • Photo 3 of 535c Falls Road, Belfast
  • Photo 4 of 535c Falls Road, Belfast
  • Photo 5 of 535c Falls Road, Belfast
  • Photo 6 of 535c Falls Road, Belfast
  • Photo 7 of 535c Falls Road, Belfast
« Back
Sale agreed | Site |
Sale agreed Price On Application

535c Falls Road Belfast , BT11 9AA

Sale agreed Price On Application

Key Information

Address 535c Falls Road, Belfast
Status Sale agreed
Price Price On Application
Land type Building Site
Heating Gas
EPC Rating E101

Features

  • Investment Opportunity
  • Single Storey Retail Unit; tenanted until 2028.
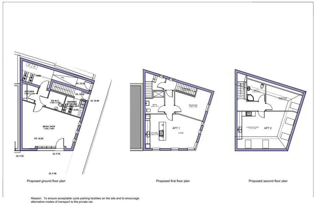
  • Full Planning Pemission for New Retail Unit & 2 No. 1 Bed Apartments
  • Prime Location

Additional Information

LOCATION
The subject site is situated on the corner of Falls Road and Glen Parade, West Belfast. Positioned on the main Falls Road facing The Kennedy Centre Shopping Centre. Falls Road is one of the most vibrant arterial routes in Belfast and enjoys exceptional levels of both vehicular traffic and pedestrian footfall, making it a prime location for business and investment.
DESCRIPTION
Currently comprises a single-storey retail unit with a long-established tenant in situ, providing immediate rental income.
PLANNING INFORMATION
The site has been granted full planning permissions; detailed below:

LA04/2023/3217/F (Granted) – Purposed Demolition of existing Retail Unit to provide New Build Commercial Retail Unit with 2 No. 1 Bed Apartments to Upper Floors.

PRICE
We have been instructed to seek Offers Around £124,950 (One Hundred and Twenty Four Thousand and Nine Hundred and Fifty Pounds)

FURTHER INFORMATION
For further information and/or register your interest, please contact our Commercial & Investments Team On 028 90 324 555 or Email commercial@northernproperty.com

Directions

Prime Falls Road Location facing Kennedy Centre.

Need some more information?

Fill in your details below and a member of our team will get back to you.

Please check you have entered all details correctly: